鑫良阀门 · 流量控制阀
为您管道安全保驾护航鑫良阀门 · 流量控制阀
为您管道安全保驾护航
咨询热线:15936519330




隔膜阀是一种特殊形式的截断阀。它的启闭件是一块用软质材料制成的隔膜,把阀体内腔与阀盖内腔及驱动部件隔开,故称隔膜阀。
隔膜阀的特点如下:
*突出特点是隔膜把下部阀体内腔与上部阀盖内腔隔开,使位于隔膜上方的阀杆、阀瓣等零件不受介质腐蚀,省去了填料密封结构,且不会产生介质外漏。
1、采用橡胶或塑料等软质密封制作的隔膜,密封性较好。由于隔膜为易损件,应视介质特性而定期更换。
2、受隔膜材料限制,隔膜阀适用于低压和温度相对不高的场合。
3.一般不宜用于温度高于60度及输送有机溶剂和强氧化介质的管路中,也不宜在较高压力的管路中使用。
隔膜阀原理:以压缩空气为动力带动传动螺杆,使阀芯上下运动,同时拉动膜片上下运动使其关闭和打开。特点:结构紧凑、简单、体积小,外形美观;开关有导向,运动平稳;关闭力矩小,寿命长,≥30万次;膜片压紧可自动调整,受压均匀,密封可靠;膜片装入阀芯采用推入式,更换方便;

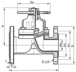
公称通径(DN) | 标准值 | ||||||
L | D | D1 | D2 | f | b | Z-φd | |
40 | 180 | 145 | 110 | 85 | 3 | 18 | 4-φ18 |
50 | 210 | 160 | 125 | 100 | 3 | 20 | 4-φ18 |
65 | 250 | 180 | 145 | 120 | 3 | 20 | 4-φ18 |
80 | 300 | 195 | 160 | 135 | 3 | 22 | 4-φ18 |
100 | 350 | 215 | 180 | 155 | 3 | 22 | 8-φ18 |
125 | 400 | 245 | 210 | 185 | 3 | 24 | 8-φ18 |
150 | 460 | 280 | 240 | 210 | 3 | 24 | 8-φ23 |
200 | 570 | 335 | 295 | 265 | 3 | 26 | 8-φ23 |
250 | 678 | 390 | 350 | 320 | 3 | 28 | 12-φ23 |
300 | 786 | 440 | 400 | 368 | 4 | 28 | 12-φ23 |
安装与维护
①隔膜阀安装前应仔细核对管路的运行条件是否与本阀规定的使用范围相符,并应清洗内腔,以防止污物卡阻或损伤密封部件。
②橡胶隔膜表面切勿涂刷油脂类物品,以防橡胶溶胀,影响隔膜阀使用寿命。
③手轮或传动机构,不允许作起吊用,并严禁碰撞。
④手动操作隔膜阀时,不得借助于辅助杠杆,以防扭力过大而损伤驱动部件或密封部位。
⑤隔膜阀应存放在干燥通风的室内,严禁堆放,库存隔膜阀的两端通道必须封口,且启闭件应处于微开启状态.

专人技术指导
Special technical guidance
专人技术指导
Special technical guidance
实现三小时内现场服务
Realize on-site service within three hours
18个月质保 终身维护
18 months warranty life-long maintenance成功案例/Success stories
为您管道安全保驾护航
联系人:赵经理 手机:15936519330
电话:0373-4790330
邮箱:807176138@qq.com
地址:河南省新乡市获嘉县亢村工业园