鑫良阀门 · 节水设备
为您管道安全保驾护航鑫良阀门 · 节水设备
为您管道安全保驾护航
咨询热线:15936519330





不锈钢**旋流防止器概述:
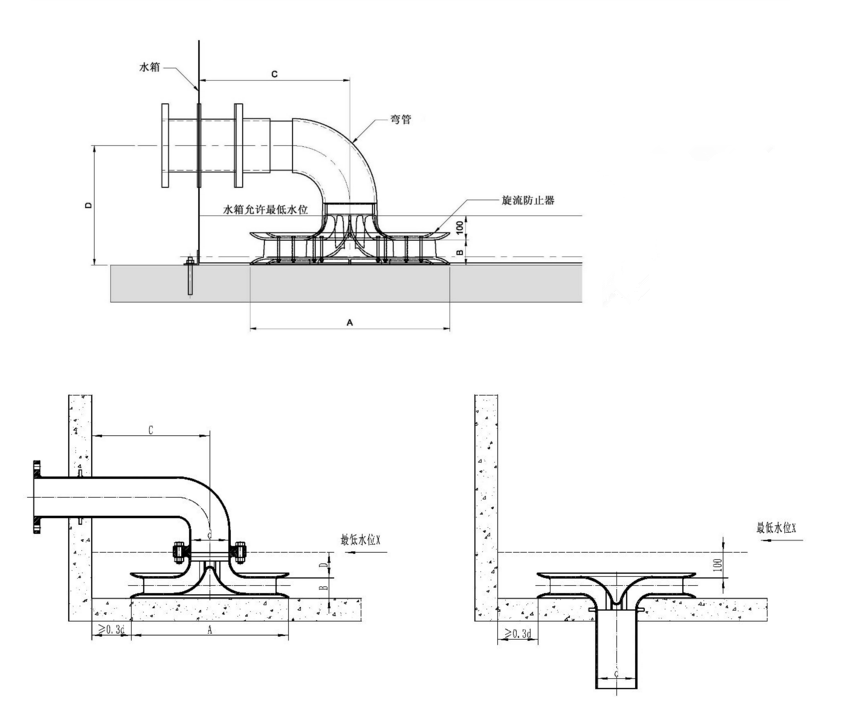
旋流防止器是一种用于防止水箱(池)在输送液体时产生旋流和防止空气进入管道的特殊管件。其作用是安装在水箱(池)水泵吸水管端口上,用来消除水箱(池)内的旋流,以确保水泵能一直全力起动并正常工作,避免空气进入水泵产生气蚀现象,能使水箱(池)里输送液体的液面降到较低液位,以确保达到*大的流量输送。本产品的设计制造严格按照欧盟标准EN12845的要求,且其性能符合GB50974-2014《消防给水及消火栓系统技术规范》的要求。适用于化工、能源、水工程等领域,特别是在消防取水池(箱)中使用,能保证有效容积被全部利用,提高消防水池有效利用率,减少死水区,实现节地要求。救援时,消防用水能得到*大限度的使用。

不锈钢**旋流防止器技术特点:
1.旋流防止器是按照欧盟标准EN12845的标准设计与制造,*低淹没深度可至100mm而不产生旋流,大大提高了水池的有效利用率。
2.有效消除抽吸水过程中水箱(池)产生的旋流。
3.防止因旋流夹着空气进入水泵,实现水泵**能输水,避免水泵产生气蚀现象而被损坏。
4.旋流防止器的结构简便而结实,实现经济型安装、免维护。
5.旋流防止器的材质是**奥氏体不锈钢06Cr19Ni10(304),防腐蚀性能强,使用寿命长。
6.符合GB/T 17219的卫生要求。
7.旋流防止器可加装过滤网。
不锈钢**旋流防止器技术参数:

注:以上参数仅供参考,可按客户需求定制
1. 口径:DN65-DN500(现有的产品,规格可拓展)。
2. 安装方式:可正装(吸水水箱)也可以倒装(高位水箱)。
3. 安装要求:旋流防止器的外缘与水池池壁应至少留有0.3d的间隙,d为吸水管到的公称尺寸。
4. 性能要求:在缺水过程中,水位下降为*低水位X时,水池页面应无漩涡产生。
5. 材质要求:奥氏体不锈钢材质(304).
6. 适用范围:适用于化工、能源、消防、水工程等领域。

专人技术指导
Special technical guidance
专人技术指导
Special technical guidance
实现三小时内现场服务
Realize on-site service within three hours
18个月质保 终身维护
18 months warranty life-long maintenance成功案例/Success stories
为您管道安全保驾护航
联系人:赵经理 手机:15936519330
电话:0373-4790330
邮箱:807176138@qq.com
地址:河南省新乡市获嘉县亢村工业园