鑫良阀门 · 泳池水处理设备
为您管道安全保驾护航鑫良阀门 · 泳池水处理设备
为您管道安全保驾护航




工作原理:
电子除垢仪(即电子水处理器),利用电子集成线路产生高频电磁场,使流经除垢仪的水吸收电磁能后,使其物理结构发生变化,将原有的大缔合体的结合键打断,变为活性很高的单分子或小缔合体状态的水,促进了水分子有序排列,增强了水的偶*距,加强了水对成垢离子及其组份的分解作用。提高了水分子对钙镁离子、碳酸根离子等成垢组份的水合能力,起到阻止水垢形成的作用。同时,在变频高频电磁场的作用下,使原有的水垢结晶体逐渐变得松软、脱落、溶解,从而达到除垢之目的。老的水垢逐渐剥落直至清除、新的水垢不易生成,并改变了水中沉积物质的沉积状态,各种离子的物理性能,细菌和藻类等微生物的生存环境,从而有效起到除垢、防垢、杀菌、灭藻的作用。

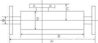
技术参数
输入电压 | 工作电压 | 消耗功率 | 适用水温 | 有效距离 |
220V.50HZ | <36V | <100W | 0oC~99oC | 2000m |
除垢阻垢有效率 | 杀菌灭藻率 | 腐蚀率 | 硬度 | 水压力 |
>98% | >95% | ≤0.125mm/a | <700mg/L | 1.0、1.6MPa |
选型技术参数:
型号 | 输入管径(mm) | *大流量(T/h) | 阻力系数 | 长度L(mm) | 重量Kg | 功率W | 排污口径(mm) |
HA-SZS-15BP | 15 | 1.8 | ≤ 0.5 | 150 | 6 | 15 | 12 |
HA-SZS-25BP | 25 | 4.9 | 0.5 | 500 | 10 | 15 | 20 |
HA-SZS-40BP | 40 | 12 | 0.5 | 500 | 15 | 20 | 20 |
HA-SZS-50BP | 50 | 19 | 0.5 | 500 | 15 | 20 | 25 |
HA-SZS-65BP | 65 | 28 | 0.5 | 500 | 15 | 30 | 25 |
HA-SZS-80BP | 80 | 50 | 0.5 | 500 | 20 | 30 | 25 |
HA-SZS-100BP | 100 | 80 | 0.5 | 500 | 25 | 50 | 32 |
HA-SZS-125BP | 125 | 125 | 0.5 | 600 | 35 | 60 | 32 |
HA-SZS-150BP | 150 | 180 | 0.5 | 600 | 48 | 80 | 40 |
HA-SZS-200BP | 200 | 320 | 0.5 | 650 | 60 | 100 | 40 |
HA-SZS-250BP | 250 | 490 | 0.5 | 750 | 78 | 120 | 50 |
HA-SZS-300BP | 300 | 710 | 0.5 | 800 | 90 | 150 | 50 |
HA-SZS-350BP | 350 | 970 | 0.5 | 850 | 125 | 200 | 65 |
HA-SZS-400BP | 400 | 1260 | 0.5 | 850 | 160 | 250 | 65 |
HA-SZS-450BP | 450 | 1600 | 0.5 | 900 | 200 | 300 | 80 |
HA-SZS-500BP | 500 | 1970 | 0.5 | 980 | 230 |
|
成功案例/Success stories
为您管道安全保驾护航
联系人:赵经理 手机:15936519330
电话:0373-4790330
邮箱:807176138@qq.com
地址:河南省新乡市获嘉县亢村工业园