鑫良阀门 · 补偿器
为您管道安全保驾护航鑫良阀门 · 补偿器
为您管道安全保驾护航





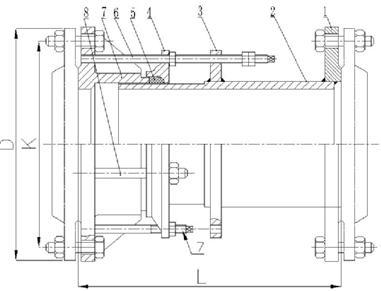
钢制伸缩节也叫钢制伸缩器,该产品的用途广泛,在一定范围内可轴向伸缩,也能在一定的角度内克服管道对接不同轴向而产生的偏移,能*大的方便阀门管道的安装与拆卸,在管道允许伸缩量中可以自由伸缩,一旦越过其*大伸缩量就起到限位的作用,确保管道的安全运行。
产品特点:
1.该产品为各种给排水管道、水塔、水泵、水表、阀门的安装拆换提供了*大方便,对长距离管路因温差而产生的伸缩起到了很好的调节作用。
2.该产品内管材分为铸铁(HT)、镀锌(DX)和钢制(SF)三种。工作压力分 PN6 、 PN10 、 PN16 三种。
3.钢制伸缩器安装前须松开压盘螺栓,将该产品拉至安装长度,然后用对角法拧紧,切勿压偏,如架空使用,两端须安装相应的固定支架。
4. 法兰连接采用 GB4216.3 - 4126.5 标准。
5.如选用其它规格可另行生产。
连接方式:
法兰连接、焊接两种,直埋式伸缩器(非地沟、设井安装时)一般采用焊接。
适用场所:
钢制伸缩器采用**钢板焊接结构,耐温、耐磨、使用寿命长,承受较大的温度变化,特别是外部密封可视工况调节密封比压及更换密封圈。能在360度范围内自由转动一定角度,而密封能自动补偿,从而有效地杜绝了外漏。有效的限位机构可避免伸缩器超过*大伸缩量使管道更安全。

尺寸规范:
DN | 40 | 50 | 65 | 80 | 100 | 125 | 150 | 200 | 250 | 300 |
*小长度 | 140 | 140 | 160 | 180 | 200 | 200 | 220 | 240 | 260 | 280 |
安装长度 | 170 | 170 | 205 | 225 | 250 | 250 | 270 | 290 | 315 | 340 |
*大长度 | 200 | 200 | 250 | 270 | 300 | 300 | 320 | 320 | 370 | 400 |
DN | 350 | 400 | 450 | 500 | 600 | 700 | 800 | 900 | 1000 | 1200 |
*小长度 | 290 | 300 | 320 | 320 | 350 | 370 | 390 | 420 | 440 | 490 |
安装长度 | 350 | 360 | 385 | 385 | 415 | 440 | 460 | 495 | 515 | 470 |
*大长度 | 410 | 420 | 450 | 450 | 480 | 510 | 530 | 570 | 590 | 650 |

专人技术指导
Special technical guidance
专人技术指导
Special technical guidance
实现三小时内现场服务
Realize on-site service within three hours
18个月质保 终身维护
18 months warranty life-long maintenance成功案例/Success stories
为您管道安全保驾护航
联系人:赵经理 手机:15936519330
电话:0373-4790330
邮箱:807176138@qq.com
地址:河南省新乡市获嘉县亢村工业园