鑫良阀门 · 过滤器
为您管道安全保驾护航鑫良阀门 · 过滤器
为您管道安全保驾护航





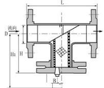
管道T型过滤器是管道输送液体过程中清除固体杂质的设备。液体流经T型过滤器时,其中的杂质被滤出,可保护机泵、压缩机、仪表和其它设备正常工作。当需要清洗时,只要将可拆卸的滤筒取出,去除滤出的杂质后,重新装入即可,使用维护*为方便。

技术参数:
壳体材质 | 碳钢 | 不锈钢 |
滤网材质 | 不锈钢 | |
密封件材质 | 耐油石棉,柔性石墨,聚四氟乙烯 | |
工作温度(℃) | -196-400℃ | |
公称压力(MPa) | 1.0~4.0 | |
过滤精度(目/in) | 10~300 | |
连接方式 | 法兰,对焊 | |
直通规格型号:
公称直径 | 主要尺寸 | 排放□“B” | 参考重量 (KG) | |||
L | L1 | L2 | H | |||
50 | 300 | 526 | 164 | 164 | R1/2" | 13.9 |
65 | 338 | 594 | 184 | 184 | 19.5 | |
80 | 368 | 652 | 196 | 196 | 24.3 | |
100 | 423 | 735 | 220 | 175 | 36.1 | |
125 | 466 | 814 | 240 | 194 | 55.3 | |
150 | 521 | 917 | 270 | 217 | 74.1 | |
200 | 630 | 1108 | 320 | 268 | 145.0 | |
250 | 738 | 1310 | 370 | 320 | 220.1 | |
300 | 846 | 1512 | 420 | 372 | 317.9 | |

专人技术指导
Special technical guidance
专人技术指导
Special technical guidance
实现三小时内现场服务
Realize on-site service within three hours
18个月质保 终身维护
18 months warranty life-long maintenance成功案例/Success stories
为您管道安全保驾护航
联系人:赵经理 手机:15936519330
电话:0373-4790330
邮箱:807176138@qq.com
地址:河南省新乡市获嘉县亢村工业园